


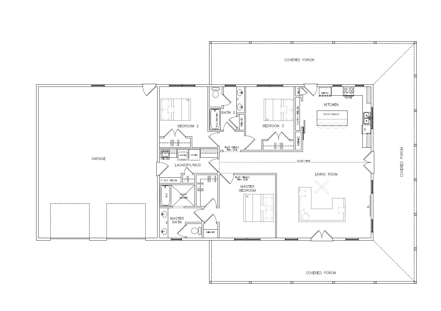
The Campbell is an 1800 sq ft home featuring three spacious bedrooms and two full bathrooms. The open floor plan connects the living and kitchen areas creating a perfect space for entertaining. This home also features a beautiful covered wrap-around porch for added outdoor space.
Starting at $350,000 this price includes a complete turn-key home with all exteriors, interiors and moderate finishes.
Upgrades available and can be tailored to your specific wants and needs for your home; including any special features or details.
Quotes do not include any costs associated with site prep.
All excavation and utilities will be factored into the final bid and estimate.
A site visit on your property is required to accurately quote an estimate and final bid.
*lot prep, excavation and utilities not included in price
We use cookies to analyze website traffic and optimize your website experience. By accepting our use of cookies, your data will be aggregated with all other user data.