




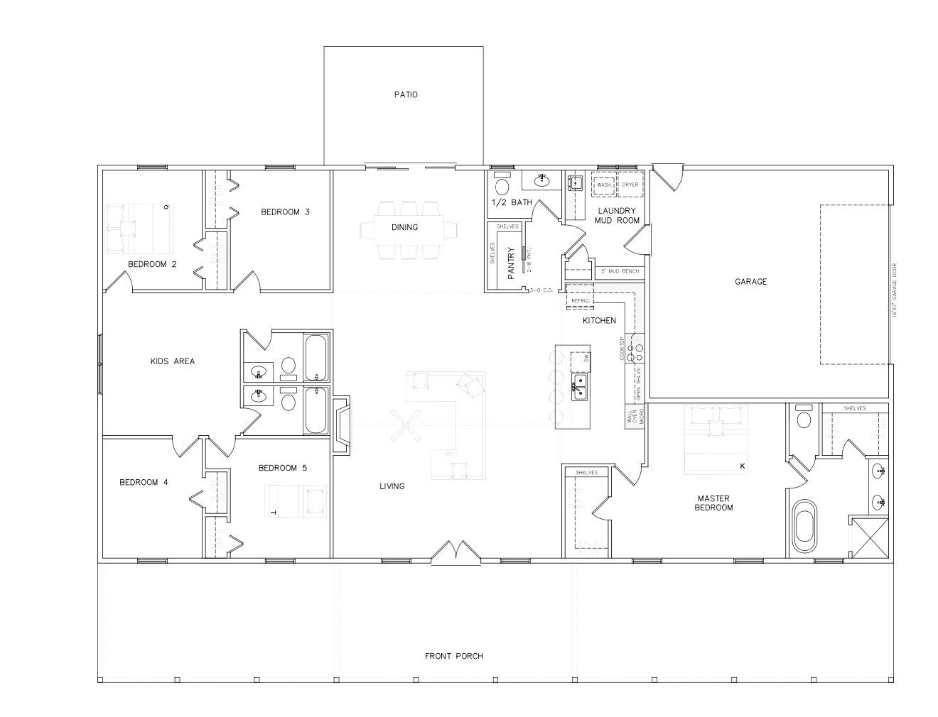
The Emory is an expansive 2,603-square-foot home designed for modern living. Featuring an open floor plan that effortlessly connects the living, dining, and kitchen areas, this home is perfect for entertaining and everyday family life. With five bedrooms and 3.5 bathrooms, including a master suite with an en-suite bathroom and walk-in closet, there is plenty of space for everyone. The home also has a convenient walk-in pantry, mud room, and laundry room.
Starting at $415,000 this price includes a complete turn-key home with all exteriors, interiors and moderate finishes.
Upgrades available and can be tailored to your specific wants and needs for your home, including any special features or details.
Quotes do not include any costs associated with site prep.
All excavation and utilities will be factored into the final bid and estimate.
A site visit on your property is required to accurately quote an estimate and final bid.
*lot prep, excavation and utilities not included in price
We use cookies to analyze website traffic and optimize your website experience. By accepting our use of cookies, your data will be aggregated with all other user data.